Never even got to know him much, but his #introduction post is here :https://qoto.org/@Surasanji/100594445373545421
Have been enjoying the @slowlyapp app for six months now. Besides great writing and reading, the app is so well designed, as are the awesome stamps we get to use to send our letters #slowly around the Planet.
#penpals rejoice, we got a home now. #xp #friendship #writers #love
Christmas Season is on, and a good #penpal friend just surprised me today -- by sending a nice gift.
Thank you! #slowly is for #writers and #friendship . #xp to #Fediverse @_lunawinters
Moderator Nominations are now officially closed.
Waiting to find out what happens. 😉 🍷
topic at our Discourse Forums : https://discourse.qoto.org/t/nomination-for-moderator-december-2019/110/11
Another NEAT idea I found just now.
"This is fantastic. #vscode now adds "mirror cursors" so you can edit opening and closing HTML tags at the same time, no extra keystrokes required. 💛
https://code.visualstudio.com/updates/v1_41#_html-mirror-cursor
Mentioned by James Harris at Toot.cafe. https://toot.cafe/@DawnPaladin/103320966224456002
RT of a nice #design element for #computing.
From: https://toot.cafe/@DawnPaladin/103324563832288969
I have always wanted this. I never thought it would be possible.
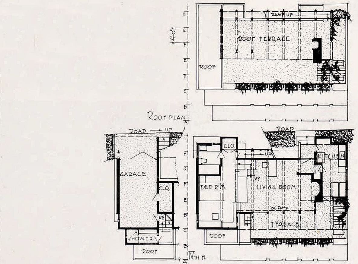
Residence of C. H. Wolfe, Old Stage Road, Avalon, Catalina Island. Arch. R. M. Schindler, 1929. https://danismm.tumblr.com/post/189718145834/residence-of-c-h-wolfe-old-stage-road-avalon
Bio-Hybrid electric cycles with 4 wheels have their first tests. Cool idea! Weather protection included.
#green #ElectricVehicles #xp #science #design #fediverse
---
RT @ebike_gen@twitter.activitypub.actor
#Schaeffler Bio-Hybrid : le vélo électrique à quatre roues achève ses premiers essais
https://bit.ly/33Xxjsn
https://twitter.com/ebike_gen/status/1203583052221419520
Setting up the Advanced Web Interface for Mastodon - Full use of wide screens
I have made crossposts of the thread at the Mothership, mastodon.social, and asked our lead developer, Eugene, to look at the wasted space that happens in many cases -- see the orange highlighted space on screenshot below.
Mothership thread has link to this one, and is located at : https://mastodon.social/@design_RG/103325295906959859
...if anyone wants to follow in case Eugene responds (he's very busy, possibly won't)
Screenshot below is what happens in various instances with AWI enabled, unfortunately.
I know of TWO instances so far (QOTO and another) that allow this optimal, full screen usage as shown in first post screenshot.
Pinafore users, how about a WIDE screen layout?
For comparison purposes -- this is the Mastodon Web client running with the AWI, Advanced Web Interface, at the same instance.
Sadly there's a lof of lost space (highlighted in Orange, right side of image).
In two instances that I know of, I can get the same layout in AWI as shown in my suggested Pinafore Mockup screenshot.
The default Mastodon setup will have lost space as shown here. (and I have the same in other instances)
Pinafore users, how about a WIDE screen layout?
How about this for a Proposed Dream Layout on Pinafore --- for us Wide Screen Users?
My mockup of a DREAM Pinafore client setup -- Local and Notifications Panels open side by side, with a Toot Editor box at the far left side. Power for Wide Screen Users!
Full Size, 1600 p wide pic: https://i.postimg.cc/028mwh79/Mockup-2
...nolan please.... Huge thank you if can be done! [sent to Pinafore author from another instance]. posted here for comments of local and #fediverse friends.
** Like the Idea, use Pinafore? BOOST appreciated, replies here as well. Nolan created a wonderful client, the best imo.
ReToot of Cory Doctorow's post.
AI Dungeon, the "infinite" text adventure is available as a smartphone app https://boingboing.net/2019/12/17/ai-dungeon-the-infinite-t.html
SwiftKey passes 500 million installs on Android - CNET - The swipe app joins the ranks of Microsoft Excel and PowerPoint. more: https://www.cnet.com/news/swiftkey-passes-500-million-installs-on-android/#ftag=CAD590a51e
In regards of QOTO's December Moderator election. Public response to a DM message.
@chikara It is not an election as in open to membership vote -- that is clear from the administrator original posting for both the November and December elections.
The process was open in allowing for nominations by ANY member, in suggesting the name of another, active member here, with at least one month of activity on the system.
Your language is unfortunate, as it cames thru as pretty acerbic, even if that was not your intention. :sadcat:
I do find it unique in here - I have been a member of many communities over the years, and in quite a few was very active and raised to Staff positions. In all of those, the selection of possible new Staff members was entirely at the current staff members, with decisions most commonly made by administrators, considering the suggestions and advice of the moderation team.
See original from the screenshot below at : https://discourse.qoto.org/t/nomination-for-moderator-nov-2019/92
Happiness is...
To learn MarkDown and have an awesome write.freely blog to quickly post a new idea or thought.
...to have a Discourse forum for the same reason.
...and to share these with friends in #fediverse so easily via Mastodon.
Forum : https://discourse.qoto.org/t/a-felicidade-e-happiness-is-la-felicidad-es/155
Blog post : https://write.tedomum.net/rgx/a-felicidade-e
🇬🇧 "Happiness is a hot tea on cold nights;
it's an icy bath in the middle of a darn heat;
is to receive a pleasant and unexpected visit on any evening;
it is warm bread with melting butter;
is coffee with the bread I wrote in the sentence above;
is to fall on all fours to the ground and die laughing;
it is not to die when falling out on all fours;
is to make your favourite cake and lick the canister at the end;
is a clean bed, fluffy pillow and sweet smelling pajamas;
is the sense of relief after a resolved situation;
is to make a call to chat with someone dear;
is to look at the horizon;
it's when looking at the horizon, seeing a better world.
Happiness is to invent and make worth the invention, because reality is too harsh."
Have a great day!
Books, Bicycles & Cats, Life is Good. Books, hardcover. Bikes, Classic sport and Touring ones. Cats, any colour or size. Aquarius with Virgo rising. INTJ.
STEM Lord, House of Ravenclaw.
I have moved -- please visit my other accounts.
* Follow my Main & Publishing account : https://muensterland.social/@rgx
* Cats photos, now posted at Catgram.Jp : https://catgram.jp/@yann2
* Pleroma Home is at FAB : https://fedi.absturztau.be/yann
Spoken & Written Languages : English. Español. Português.